Anzeige

Zukunftsorientiertes Bauen – wir zeigen Ihnen wie!

Träume verwirklichen
5Bilder

Effizient, effizienter, noch effizienter: Die energetischen Anforderungen für neue Häuser haben immer höhere Maßstäbe. Seit Beginn dieses Jahres gelten neue, strengere Vorgaben für den jährlichen Primärenergiebedarf und den Dämmstandard von Neubauten. Alle neu gebauten Häuser dürfen jetzt nur noch 25 Prozent weniger Primärenergie verbrauchen als vorher. Diese Richtlinien für Wohngebäude gibt die aktuelle Energieeinsparverordnung (EnEV 2016) vor.
Mit Konzepthaus und den Häusern von Deutsche Bauwelten bauen Sie für Ihre Zukunft und erfüllen die Anforderungen der EnEV 2016 spielend. So sind alle unsere Häuser standardmäßig mit einer hocheffizienten Luft/Wasser-Wärmepumpe ausgestattet und gehören zur besten Energieeffizienzklasse A+. Auch wenn Sie ein staatlich gefördertes KfW-Effizienzhaus bauen möchten, sind Sie bei uns an der richtigen Adresse.

Das ist gut für die Umwelt und gut für Ihren Geldbeutel

Durch den Einbau einer Wärmepumpe sparen Sei besonders wirkungsvoll Energie. Wärmepumpen entziehen der Umgebungsluft die Wärme und nutzen sie für die Warmwasserbereitung oder zum Heizen. Aufgrund ihrer Zuverlässigkeit und Energieeffizienz sind sie ein wesentlicher Baustein für zukunftssicheres Bauen. Und Konzepthaus-Bauherren können sich gleich doppelt freuen: diese umweltfreundliche Haustechnik erfüllt alle Anforderungen der EnEV 2016 mühelos und ist bereits im Hauspreis inbegriffen.

Mehr als ein Haus – wir bauen Ihr Wunschhaus

Ihr Traumhaus kann viele Gestalten annehmen. Unser vielfältiges Angebot bietet Ihnen einzigartige Lösungen für Ihre ganz individuellen Wohnwünsche. Nach Maß gestaltete und schlüsselfertige Einfamilienhäuser, genauso wie attraktive Doppelhäuser oder schicke Reihenhäuser. Immer bauen wir für Sie schlüsselfertig und mit Festpreisgarantie. Wir von Konzepthaus setzen gemeinsam mit unserem Lizenzpartner Deutsche Bauwelten bei allen Bauvorhaben auf wertbeständige Massivbauweise, Individualität und Kundennähe.
Hier möchten wir Ihnen ein Beispiel aus unserem umfangreichen Hausbauprogramm zeigen. Mit dem Haus des Monats Juni möchten wir Sie für unsere Bauwelten begeistern:

ELEGANZ 1140 SV – eine Stadtvilla zum Verlieben

Diese schicke Stadtvilla von Deutsche Bauwelten punktet mit lichtdurchfluteten Räumen auf zwei Vollgeschossen und einer großzügigen Wohnfläche von 147 qm. Mit einer zweifarbigen Putzfassade, bodentiefen Fenstern und einem großen Balkon erfüllt die Stadtvilla alle Ansprüche an Eleganz und Komfort. So bietet bereits die Grundausstattung viele Annehmlichkeiten: Von der energieeffizienten 3-fach-Verglasung der Fenster, über eine Fußbodentemperierung und Handtuchheizkörper im Familienbad bis hin zum umfangreichen Fliesenpaket für Bad, WC, Diele, Flur, HAR und Küche.

Für Sie – unser Qualitätsversprechen

Nicht nur bei der Planung und Gestaltung setzen wir höchste Qualitätsmaßstäbe. Auch beim Bau Ihres Hauses vertrauen wir ausschließlich auf namhafte Produkte und ein qualifiziertes Handwerkerteam.
Wir, als Lizenzpartner von Deutsche Bauwelten, sind Ihr lokaler Ansprechpartner vor Ort. Ganz gleich, welche Herausforderung wir angehen: wir behandeln jedes Projekt mit der gleichen Sorgfalt und Präzision. Denn der beste Baustoff ist immer Qualität.

Haben wir Ihr Interesse geweckt?
Unsere Verkaufsberater nehmen sich gerne Zeit für Sie und zeigen Ihnen den Weg zu Ihrem Wunschhaus.

Konzepthaus GmbH, 63863 Eschau, Elsavastraße 25, Telefon 09374 – 900 50,
www.konzepthaus-deutsche-bauwelten.de

Träume verwirklichen
Haus ELEGENZ 1140 SV von Deutsche Bauwelten
ELEGANZ 1140 SV Grundriss EG
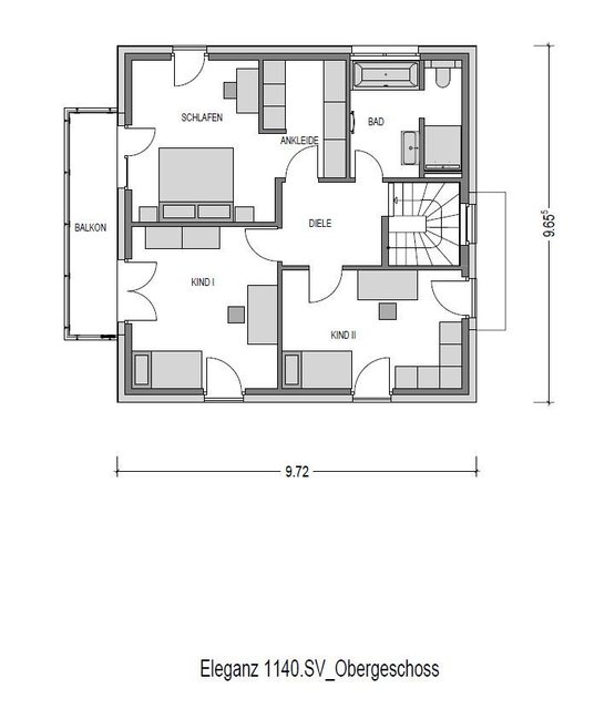
ELEGANZ 1140 SV Grundriss OG
Ihr Baupartner mit Herz

Sie möchten kommentieren?

Sie möchten zur Diskussion beitragen? Melden Sie sich an, um Kommentare zu verfassen.

Bauen & WohnenAnzeige
0:40
0:40

Jahresrückblick
Ein Rückblick auf unsere Bauprojekte, Teamarbeit und Fortschritte bei Berres Bau

Ein Rückblick auf unsere Bauprojekte, Teamarbeit und Fortschritte bei Berres Bau Ein Recap ist mehr als nur ein Rückblick auf Projekte, Zahlen oder schöne Bilder. Es ist ein Moment des Innehaltens. Ein kurzes Zurücklehnen, um zu sehen, was in den letzten Monaten entstanden ist auf Baustellen, im Büro und vor allem im Team. Wenn wir auf das vergangene Jahr zurückschauen, sehen wir nicht nur fertige Häuser, Baufortschritte oder neue Projekte. Wir sehen frühe Morgen am Lager, Gespräche auf der...

Auto & Co.Anzeige

Dein Autohaus Erftal Team: Tobias Schlegel (Geschäftsführer)

Geschäftsführer Tobias führt unser Autohaus durch den Alltag. 🫡 Mit Herzblut für Autos, offenem Ohr für´s Team und klarer Vision für die Zukunft. 😃✨ Schaut rein, lernt Tobias kennen und macht gleich einen Beratungstermin bei ihm aus. #autohauserftal #bürgstadt #teamerftal #autohaus #volvo #kreismiltenberg #autohauskapitän #chefabercool #autohauslife

Gesundheit & WellnessAnzeige
10 Bilder

Vom Kneippen bis zum Winterbaden
Kältereiz mit Power

Wer gesund und fit durch die kalte Jahreszeit kommen möchte, kann seine Abwehrkräfte unterstützen – mit Bewegung, frischer Luft sowie gezielten Wärme- und Kältereizen, etwa Wechselduschen, Saunagängen oder sogar einem kurzen Eisbad. Eintauchen in den eiskalten See? Vielen läuft es allein beim Gedanken daran kalt den Rücken hinunter. Dennoch hat sich die finnische Tradition auch hierzulande zum Trend entwickelt. Dahinter steckt ein klarer Effekt: Starke Kältereize fordern den Körper heraus,...

Essen & TrinkenAnzeige

What’s inside the box? Nachhaltige Burgerverpackung im Diner

100 % kompostierbar, 100 % Geschmack: Dein Burger kommt in einer nachhaltigen Bambusfaser-Verpackung direkt zu dir nach Hause. Gut für dich, gut für die Umwelt. What’s inside the box? 🍔 100 % kompostierbar. 100 % Geschmack. Kein Plastik, keine beschichteten Pappen, kein Greenwashing. Stattdessen eine Lösung, die Alltagstauglichkeit und Umweltbewusstsein zusammenbringt, ohne Abstriche beim Geschmack. Nachhaltige Verpackung, die ihren Zweck erfülltBurger, Pommes und Beilagen stellen hohe...

Beruf & AusbildungAnzeige

Rentner-Kaffee bei WIRL – Wiedersehen mit Herz

Ehemalige Mitarbeitende treffen sich bei Kaffee und Kuchen. Persönliche Gespräche, Erinnerungen und echter Zusammenhalt. Ein Wiedersehen, das verbindet Wenn ehemalige Mitarbeiterinnen und Mitarbeiter bei Kaffee und Kuchen zusammenkommen, entsteht etwas, das man nicht planen kann: Nähe, Vertrauen und das gute Gefühl, weiterhin dazuzugehören. Schon beim Ankommen wird klar, warum dieses Treffen für viele einen besonderen Stellenwert hat. Bekannte Gesichter, herzliche Begrüßungen und Gespräche, die...

Video einbetten

Es können nur einzelne Videos der jeweiligen Plattformen eingebunden werden, nicht jedoch Playlists, Streams oder Übersichtsseiten.

Abbrechen

Karte einbetten

Abbrechen

Social-Media Link einfügen

Es können nur einzelne Beiträge der jeweiligen Plattformen eingebunden werden, nicht jedoch Übersichtsseiten.

Abbrechen

Code einbetten

Funktionalität des eingebetteten Codes ohne Gewähr. Bitte Einbettungen für Video, Social, Link und Maps mit dem vom System vorgesehenen Einbettungsfuntkionen vornehmen.
Abbrechen

Beitrag oder Bildergalerie einbetten

Abbrechen

Schnappschuss einbetten

Abbrechen

Veranstaltung oder Bildergalerie einbetten

Abbrechen

Sie möchten selbst beitragen?

Melden Sie sich jetzt kostenlos an, um selbst mit eigenen Inhalten beizutragen.